Not Your Run-of-the-Mill Picton Home

12 Scotland Street, Picton 7220

Enquiries Over $719,000

Nestled at the base of Tirohanga Hill, surrounded by native greenery and birdsong, this three bedroom home is a private sanctuary that feels miles from everything, yet sits only minutes from Picton’s cafés, marina and waterfront. It’s a home with heart, balance and all the hallmarks of easy Marlborough living.

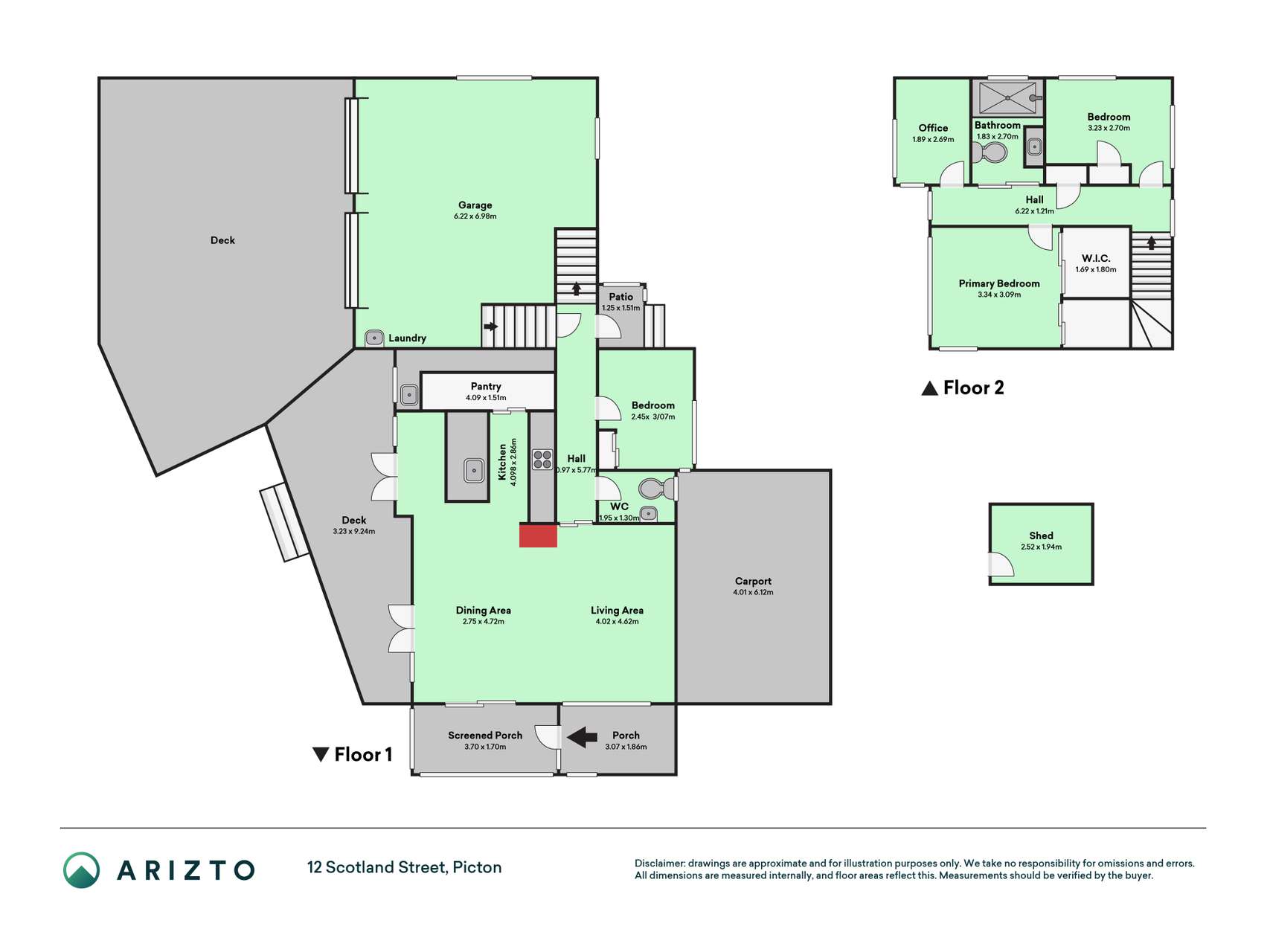
Inside, space and comfort unfold across two levels. The ground floor is the social hub - a bright open-plan living and dining area anchored by a wood burner and framed by picture windows that capture the lush backdrop. Sliding doors open to the screened porch, creating that effortless indoor-outdoor flow perfect for morning coffee or evening drinks with friends.

The kitchen brings modern function to the heart of the home, featuring a large island bench, walk-in pantry and plenty of natural light. Also on this level, a generous bedroom, guest toilet and internal-access garage with tidy laundry make everyday living a breeze.

Upstairs, peace takes over. The main bedroom looks out to green hillsides and includes a walk in robe plus a storage room which can easily become an ensuite. A sleek, fully tiled family bathroom plus a third bedroom and a dedicated home office complete the upper floor, giving everyone space to unwind or work in quiet.

Outside, the established gardens are beautifully green year-round, with a mix of flowering shrubs, fruit trees and native plantings that create privacy and calm. There’s a carport and extra parking for the boat or trailer, plus a garden shed for all the gear that comes with Marlborough life.

Homes with this kind of soul and setting don’t stay hidden for long. Contact Anne Goodyer today to arrange your private viewing.
Anne  Goodyer

Anne Goodyer

Internal Server Error